公安系統刑偵DNA實驗室設計方案
公安系統刑偵DNA實驗室的設計
一、 行業職能
公安局刑偵實驗室是一種特殊的科技行業,案件偵破的核心是尋找、發現和固定犯罪證據,運用
信息技術、生物技術、自動化技術、納米技術等現代技術手段進行取證其結論為法庭提供論據,關
系到公民的權利保障和司法公正。
二、 適用范圍
刑偵科學、血液檢測、生物安全實驗室、疾控中心實驗室、高校/研究院實驗室、醫療衛生實驗室、食品藥品檢驗檢測實驗室、PCR實驗室等

格局規劃:本樣板間主要展示各功能間建造材料和新型材料的應用以及各功能間儀器設備和實驗室
家具,設計格局僅供參考,在方案咨詢區內各單位可根據自身需求索取相應的解決方案。

三、 規劃設計
1、設計依據及相關標準:
建筑裝飾裝修工程質量驗收規范
建筑玻璃應用技術規程
建筑地面工程施工質量驗收規范
潔凈廠房設計規范
建筑設計防火規范
建筑電氣工程施工質量驗收規范
2、設計理念:
造型簡潔大方、設施 、營造一個安全、潔凈、舒適寧靜的實驗環境。
3、設計構思:
按實驗室功能劃分的理化檢驗、物證檢驗、痕跡檢驗、文件檢驗、影像技術、法醫學DN
等,日常需進行的試驗項目較多,而各類型試驗項目要求的實驗環境相對舒適寧靜,互不影響;
同時在保證正常試驗操作時,實驗室還可以作為參觀展示的樣板工程。
除法醫學DNA實驗室外,各實驗室之間可采用混凝土輕質裝墻隔斷;走廊側可采用下半部分混
凝土輕質磚墻,上半部分飾面板框架雙層固定鋼化玻璃隔斷,門采用加厚隔音實木門,這樣保證寧
靜的實驗環境又保持實驗室的可參觀性。實驗室的所有混凝土磚墻面都鋪貼淺色拋光磚,凝造一個
干凈舒適的實驗環境。天棚采用輕鋼龍骨無孔鋁合金扣板吊頂,保證實驗室天棚內設備可保養維
修;地面采用拋光磚鋪貼,色彩從天棚到地面依次為:白(天棚)—淺(墻面)—中(實驗家具)—深(地
面)。
法醫學DNA實驗室的隔斷和吊頂都采用玻鎂板,地面彩采用自流平抗靜電PVC地板,在隔斷與隔
斷、地面、吊頂之間使用R50電泳噴涂鋁合金過渡,色調搭配和普通實驗區類似,這樣保證DNA實
驗室一個密閉、易潔凈的環境,結合組合式潔凈空調設計達到法醫學DNA實驗室要求的潔凈、氣流
壓差的實驗室。
4、防火要求:
1).根據建筑設防火規范要求,本裝飾工程設計中主要材料采用不燃性和難燃性材料。
2).所有隱蔽消防木結構都采用防火木材,使其達到B1級。
5、防潮、防銹、隔聲、防水處理:
1).為防止潮氣侵入引起木結構變形、腐蝕,建筑內墻、地面層須做防潮層,內墻面抹1:3水泥
砂漿。
2). 鋼結構表面及吊頂吊筋等需刷紅丹防銹漆作防銹處理。
3). 防火木材作隔墻,部分墻體內可用玻璃纖維填充,起隔音、保溫作用。
四、 功能分區
槍彈實驗室:包含:受理室、資料室、樣本槍支存放室、危險槍支射擊室、拆解室、制標室、抓彈
室、記錄室、修復室、耗材室、數據分析室等。
槍彈實驗室主要用于危險槍支的檢測、測速及彈痕的收集與分析,實驗區設立門禁及視頻監控系
統,樣本槍支存放室安裝監控系統,防盜報警系統,危險槍支射擊室、抓彈室預留合理空間放置測
試設備及射擊通道的足夠距離。射擊方向的墻面做防跳彈處理。
案件受理、物證、檔案及行政辦公:有接案大廳、值班室、傷情室、物證室、檔案室、備勤室、質控室、內審室、案件研判室、專家室、技術管理室、會議室、閱覽室、多媒體教學(會議)室等功能間組成。有接案大廳、值班室根據人員配備及人流量等方面綜合考慮、物證室設置物證柜、冰
箱、保險柜等儲物設備。傷檢區檢查室根據實驗功能安排檢查床、洗手臺、拖把池、物品柜,器材
室配置貨架保存器材。
文檢:主要是對現場搜集的紙質物證通過技術手段進行檢測分析。有受理預檢室、文檢資料室、數
據處理室、受理預檢室、印刷、污損文件檢驗室、電子顯微鏡室、文檢儀檢驗室、靜電壓痕檢驗
室、筆記/印章檢驗室等功能間組成。設計時考慮流程的合理性。
視頻、照相、電子物證:主要是對與案件相關的視頻影像、電子物證進行篩查;采集、制作視頻像
證;通過證人提供的人物特征模擬出犯罪嫌疑的的肖像。
有視頻采集室、視頻制作室、視頻室、模擬畫像、畫像識別室、、圖像處理室、聲紋采集室、聲紋
制作室、語音分析室、數據處理室、電子物證、精密儀器、檢測室、影像檢驗室、顯微照像室、制
卷室、紅外、紫外、數字暗房、影像資料保管室等功能間組成。
痕跡分析區:有槍彈陳列室、槍彈比對室、數據處理室、現勘器材室、現勘系統工作室、資料室、標
本室、案件受理室、物證暫存室、指紋檢驗室、指紋檔案室、光學顯現室、爆炸案件實驗室、化
學顯現室、物理顯現室、工具檢驗室、工具制作室、足跡實驗室、模擬現場勘查室等功能間組成。
模擬現場室應根據真實的居住環境設計一套完整的簡易套間、隔墻1.8米左右、設出入通道(門
洞)。
人類學研究區:有診斷室、圖書資料室、損傷工具研究室、解剖實驗室、人類學標本測量研究室、
顱像重合室、人類學標本陳列展覽室等功能間組成。
病理實驗室:通過取材、脫水、浸蠟、包埋、切片、染色、封片后對樣品進行鏡檢。有更衣室、值
班室、化學試劑室、病理耗材室、硅藻檢驗室、硅藻讀片室、藥劑配置室、病理生理研究室、病理
病理取材室、標本處理區、組織包埋區、特染和免疫組化區、常規HE染色區、切片區、蠟塊存放
室、切片存放室等功能間組成。病理實驗功能間按照實驗流程布置,取材—樣品處理—包埋—染色
—切片—診斷室,其中處理—包埋—染色—切片為污染區,安裝緊急洗眼器、緊急淋浴器等個人安
全防護設備,設置取材臺,通風柜、中央臺、邊臺等,診斷室為相對清潔區,靠入口及辦公區。硅
藻檢驗室同樣為污染區,根據需求配置通風柜、工作臺。輔助功能間,更衣、試劑耗材室、玻片蠟
塊存放室根據功能需要配備儲物柜、更衣柜、玻片柜、蠟塊柜。
理化分析區:理化分析區包含:受理室、數據處理室、耗材室、試劑室、天平室、標準品庫、質控
分析室、物證保管室(非生物)、化學實驗室(物證毒品處理)、爆炸物檢驗室、生物前處理室、
物證保管室(生物)、電鏡室、 HPLC室、GC/MS室、紅外、紫外、熒光、X射線衍射、ICP/MS、
IC/MS、GC、UPS穩壓電源室、氣瓶室、廢棄物等功能間組成。理化前處理室為重點污染區,據需
求設置通風柜、中央臺、邊臺等,安裝緊急洗眼器、緊急淋浴器等個人安全防護設備;譜類儀器
室、儀器室配備小型抽風設備萬向罩、吸收罩,儀器室采用專用儀器臺,承重性強,抗震,預預留
氣路、電線等安裝通道,臺后預留檢修通道,氣瓶室根據用氣安全,分隔為可燃氣體間,難燃氣體
間,安裝防爆電器,可燃氣體房間靠窗設置,發生危險時可以通過窗泄爆,天平室采用專用天平
臺,滿足抗震要求,試劑室配置帶抽風試劑柜,有效保護室內環境,物證樣本庫、試劑標準品室、
耗材室、更衣室、資料室根據需求配制相應儲物設備、冰箱等。
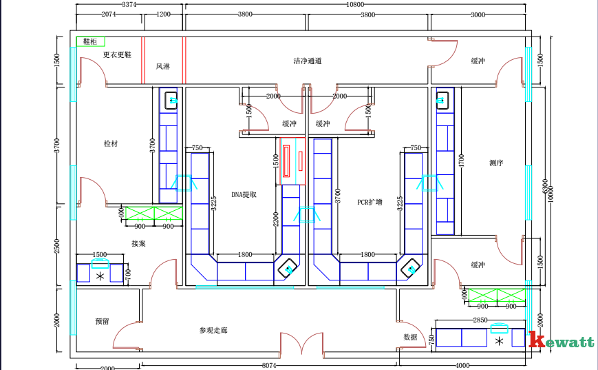
DNA測序鑒定區:在刑偵技術領域DNA測序鑒定技術較多地運用于一些重大疑難案件尤其是兇殺
案、強奸案的偵破中,主要是提取物證上、擬似物證(毛發、指甲等)或受害人身上的血跡、精斑
的DNA與犯罪嫌疑人的DNA或數據庫的DNA進行比對,以認定或排除嫌疑人。

DNA鑒定區主要由公共區域、案件、和數據庫、三個區間組成。
公共區域:為共用輔助區,有更衣室、風淋室、初檢室、洗消室、物證暫存室、模板存放室、藥品
室、資料室機房等功能間組成,為案件及數據庫提供前期、后期配套服務。
案件區細分為:接案室、數據錄入室、人員樣品提取室、疑難檢材提取室、接觸性檢材提取室、常
規物證提取室、微量元素提取室、自動化提取室、單細包抓取室、試劑配置室、加樣室、PCR擴增
室、電泳室、數據分析室等;主要是為刑事案件的偵破提供有力依據。
數據庫區細分為:有數據庫接檢室、數據庫數據錄入室、數據庫提取、試劑配置室、加樣室、數
據庫擴增室、電泳室、數據庫分析室等功能間組成。主要是對從各種渠道收集到的DNA片段通過技
術手段提取分析后錄入數據庫為以后的比對打下堅實的基礎。
整個實驗區采用潔凈空調系統、潔凈裝修,實現氣流有序控制。其中初檢室、試劑配制室、清
消室、手工提取室、微量檢材提取區、建庫提取室、擴增加樣室為潔凈區,擴增室、測序分析室為
污染區。實驗人員進入實驗區要先更衣。各功能間按照實驗流程分布:初檢—提取—加樣—擴增—
分析。實驗室根據需求配置生物安全柜、工作臺、冰箱、儲物柜、試劑柜等,水龍頭采用感應龍
頭,安排緊急洗眼器等安全設備。設計“以人為本”,遵照省級實驗室及各類實驗室規范及要求設計
標準,按照”安全 、以人為本、設計規范,流程合理“的設計原則進行規劃。

同類文章排行
- 實驗室規劃建設需要注意的地方
- 科瓦特2023年春節放假通知
- 成功簽約常熟立訊實驗室改造工程
- 喜訊,簽約完美生命科技研究院SPF動物實驗室
- 中山科瓦特國慶中秋放假通知
- 簽約中山板芙醫院PCR檢測室工程
- 喜訊 中標鴻基創能科技公司實驗室工程
- 成功簽約廣東威科質量檢測公司SPF級動物實驗室
- 2019年,科瓦特機電開工大吉
- 2019年春節放假通知
最新資訊文章
- 實驗室設計公司如何選擇
- 實驗室裝修設計方案需考慮哪些因素
- 實驗室裝修要考慮哪些因素
- 建設一個實驗室要花費多少錢,周期多長
- 實驗室裝修施工流程有哪些
- 實驗室空間如何布局
- 實驗室設計要注意那些要點
- 實驗室臺如何布局更好
- 實驗室裝修細節大揭秘
- 實驗室設計周期是多久?






