某灌裝飲料廠實驗室設計圖
此項目為科瓦特實驗室為某灌裝飲料廠設計的,總共分為三層,一層為普通辦公室加車間。

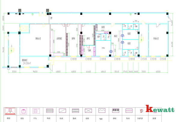
二層實驗室效果圖 ,要求人流和物流分開,按潔凈區域按等級高的向等級低的流向。

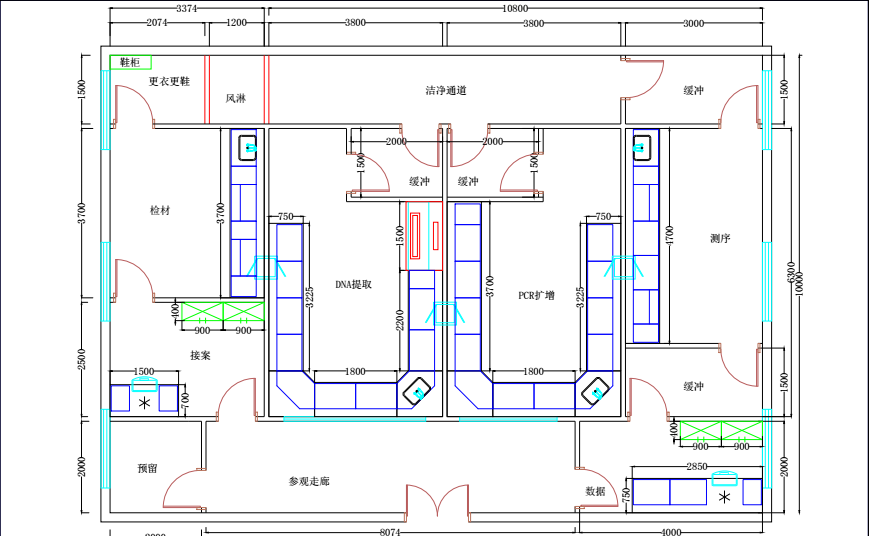
三層為主實驗區,有化驗區,理化檢測區。

中山科瓦特機電有限公司專業從事實驗室領域的規劃,設計,建設,施工售后一體化服務,提供實驗室工程的整體建設,包括實驗室凈化工程,實驗室裝修工程,實驗室通風工程,實驗室供氣系統,實驗室環保廢氣系統,實驗室供電系統,實驗室純水系統等。
科瓦特實驗室規劃方案:
無論你的實驗室建設是下面哪種情形,“科瓦特實驗室”都可為你提供一站式整體解決方案
實驗室建筑建設形式
新建實驗室工程規劃設計
舊樓功能改造 綜合樓改實驗樓 辦公樓改實驗樓 實驗室更新改造 實驗室整體配套設計專業分項
平面布局規劃 室內裝飾工程 電氣及智能自動化 給排水系統 通風控制
空調及空氣凈化處理
實驗室恒溫恒濕環境
生物安全及實驗室環境安全 防火防腐防輻射 超純氣體輸送系統 實驗室通風系統 實驗室水電系統 實驗室三廢處理.
疾控中心:樣品受理中心、質控科、公共衛生科、慢病中心、血液科病毒科、免疫科、細菌科、理化中心、毒理科、動物房
質檢中心:樣品受理中心、計量檢測、儀表類檢測、包裝物檢測、食品化妝品檢測、水質檢測、紡織檢測、紙張檢測、電子類產品檢測、電器檢測、珠寶檢測、玩具檢測、家具檢驗、建材檢測、油品檢測、涂料檢測、電線電纜檢測、塑料檢測、鞋類檢測、管材檢測、摩托車檢測、車倆檢測等
農檢中心:樣品受理中心、理化實驗室、農殘分析室、儀器分析室、轉基因產品實驗室、無菌室
檢測中心:樣品受理中心、中藥檢測、化學檢測、抗生素檢測、動物房、潔凈室(微生物限度、陽性對照、無菌室、效價室、粒度室)
疾 控:收發血、體檢中心、檢驗科(臨檢、遺傳學、生化、免疫、中心檢驗、微生物室、PCR室、艾滋病)、病理科(病理取材、脫水、包埋、染色、切片、觀察等)
煙草技術:原料輔料檢測、煙絲工藝、香精香料、煙氣分析、評吸室、化學分析室、儀器分析、物理檢測室
食品檢驗:理化實驗室,儀器分析室、輔助功能實驗室、無菌室、真菌室
生物:基礎化學實驗室、合成實驗室、藥效實驗室、制劑及釋藥實驗室、分析測試中心、生物實驗室、病毒疫苗實驗室、動物房、中試車間
刑偵技術:法醫實驗室、解剖實驗室、物證室、理化實驗室、工痕實驗室、手引顯現實驗室、足跡實驗室、指紋實驗室、人工畫像實驗室、畫像識別室、圖像處理室、語音分析室、DNA實驗室、光源實驗室
實驗室建筑建設形式
新建實驗室工程規劃設計
舊樓功能改造 綜合樓改實驗樓 辦公樓改實驗樓 實驗室更新改造 實驗室整體配套設計專業分項
平面布局規劃 室內裝飾工程 電氣及智能自動化 給排水系統 通風控制
空調及空氣凈化處理
實驗室恒溫恒濕環境
生物安全及實驗室環境安全 防火防腐防輻射 超純氣體輸送系統 實驗室通風系統 實驗室水電系統 實驗室三廢處理.
疾控中心:樣品受理中心、質控科、公共衛生科、慢病中心、血液科病毒科、免疫科、細菌科、理化中心、毒理科、動物房
質檢中心:樣品受理中心、計量檢測、儀表類檢測、包裝物檢測、食品化妝品檢測、水質檢測、紡織檢測、紙張檢測、電子類產品檢測、電器檢測、珠寶檢測、玩具檢測、家具檢驗、建材檢測、油品檢測、涂料檢測、電線電纜檢測、塑料檢測、鞋類檢測、管材檢測、摩托車檢測、車倆檢測等
農檢中心:樣品受理中心、理化實驗室、農殘分析室、儀器分析室、轉基因產品實驗室、無菌室
檢測中心:樣品受理中心、中藥檢測、化學檢測、抗生素檢測、動物房、潔凈室(微生物限度、陽性對照、無菌室、效價室、粒度室)
疾 控:收發血、體檢中心、檢驗科(臨檢、遺傳學、生化、免疫、中心檢驗、微生物室、PCR室、艾滋病)、病理科(病理取材、脫水、包埋、染色、切片、觀察等)
煙草技術:原料輔料檢測、煙絲工藝、香精香料、煙氣分析、評吸室、化學分析室、儀器分析、物理檢測室
食品檢驗:理化實驗室,儀器分析室、輔助功能實驗室、無菌室、真菌室
生物:基礎化學實驗室、合成實驗室、藥效實驗室、制劑及釋藥實驗室、分析測試中心、生物實驗室、病毒疫苗實驗室、動物房、中試車間
刑偵技術:法醫實驗室、解剖實驗室、物證室、理化實驗室、工痕實驗室、手引顯現實驗室、足跡實驗室、指紋實驗室、人工畫像實驗室、畫像識別室、圖像處理室、語音分析室、DNA實驗室、光源實驗室
全國免費服務熱線:400-6818-300
地址:廣東省中山市黃圃鎮新豐北路51號
電話:0760-23626818
傳真:0760-23626819
郵編:528429
業務QQ: 1695536823
業務咨詢:180-2201-9058 陳工
技術咨詢:133-1828-1228 周先生
下一條:微生物實驗室改造項目設計圖上一條:醫院檢驗科免疫實驗室設計圖
此文關鍵字:飲料廠實驗室設計圖
同類文章排行
- 實驗室規劃建設需要注意的地方
- 科瓦特2023年春節放假通知
- 成功簽約常熟立訊實驗室改造工程
- 喜訊,簽約完美生命科技研究院SPF動物實驗室
- 中山科瓦特國慶中秋放假通知
- 簽約中山板芙醫院PCR檢測室工程
- 喜訊 中標鴻基創能科技公司實驗室工程
- 成功簽約廣東威科質量檢測公司SPF級動物實驗室
- 2019年,科瓦特機電開工大吉
- 2019年春節放假通知
最新資訊文章
- 實驗室設計公司如何選擇
- 實驗室裝修設計方案需考慮哪些因素
- 實驗室裝修要考慮哪些因素
- 建設一個實驗室要花費多少錢,周期多長
- 實驗室裝修施工流程有哪些
- 實驗室空間如何布局
- 實驗室設計要注意那些要點
- 實驗室臺如何布局更好
- 實驗室裝修細節大揭秘
- 實驗室設計周期是多久?






