體檢中心及醫學實驗室設計圖
體檢中心及醫學實驗室規劃方案設計圖:
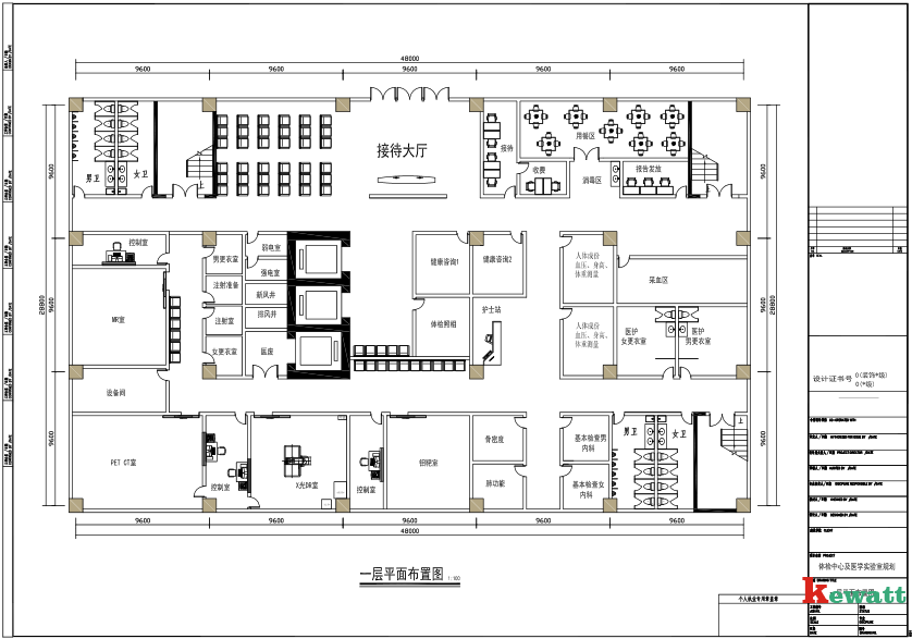
1、按四層單體建筑來規劃,總建筑面積4500平方米左右;
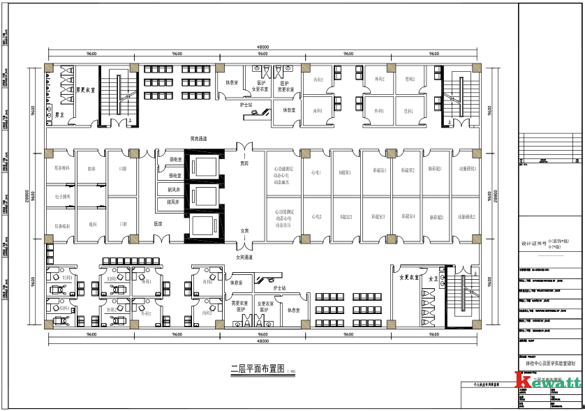
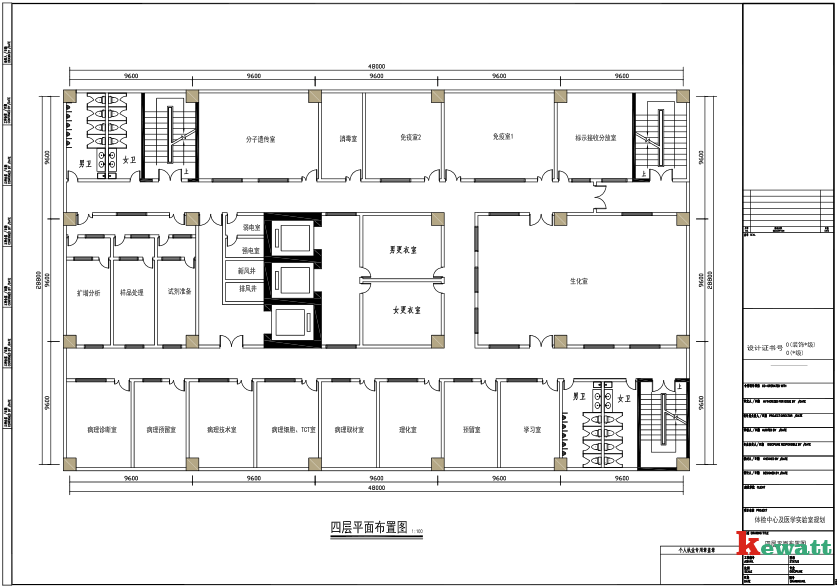
2、一、二、三層為健康體檢中心,四層為醫學獨立實驗室;
3、大型檢查設置于一層,二、三層按男女為導向分開設置,同時提供VIP服務;如果建筑面積再增加一層,可設置賓館住家式VIP體檢服務(增加睡眠質量檢測等);
4、四層醫學獨立實驗室設置:標本接收分發室、生化室、免疫室、消毒室、理化室、分子遺傳室、病理室等。




科瓦特實驗室規劃方案:
無論你的實驗室建設是下面哪種情形,“科瓦特實驗室”都可為你提供一站式整體解決方案
實驗室建筑建設形式
新建實驗室工程規劃設計
舊樓功能改造綜合樓改實驗樓辦公樓改實驗樓實驗室更新改造實驗室整體配套設計專業分項
平面布局規劃室內裝飾工程電氣及智能自動化給排水系統通風控制
空調及空氣凈化處理
實驗室恒溫恒濕環境
生物安全及實驗室環境安全防火防腐防輻射超純氣體輸送系統實驗室通風系統實驗室水電系統實驗室三廢處理.
疾控中心:樣品受理中心、質控科、公共衛生科、慢病中心、血液科病毒科、免疫科、細菌科、理化中心、毒理科、動物房
質檢中心:樣品受理中心、計量檢測、儀表類檢測、包裝物檢測、食品化妝品檢測、水質檢測、紡織檢測、紙張檢測、電子類產品檢測、電器檢測、珠寶檢測、玩具檢測、家具檢驗、建材檢測、油品檢測、涂料檢測、電線電纜檢測、塑料檢測、鞋類檢測、管材檢測、摩托車檢測、車倆檢測等
農檢中心:樣品受理中心、理化實驗室、農殘分析室、儀器分析室、轉基因產品實驗室、無菌室
檢測中心:樣品受理中心、中藥檢測、化學檢測、抗生素檢測、動物房、潔凈室(微生物限度、陽性對照、無菌室、效價室、粒度室)
疾控:收發血、體檢中心、檢驗科(臨檢、遺傳學、生化、免疫、中心檢驗、微生物室、PCR室、艾滋病)、病理科(病理取材、脫水、包埋、染色、切片、觀察等)
煙草技術:原料輔料檢測、煙絲工藝、香精香料、煙氣分析、評吸室、化學分析室、儀器分析、物理檢測室
食品檢驗:理化實驗室,儀器分析室、輔助功能實驗室、無菌室、真菌室
生物:基礎化學實驗室、合成實驗室、藥效實驗室、制劑及釋藥實驗室、分析測試中心、生物實驗室、病毒疫苗實驗室、動物房、中試車間
刑偵技術:法醫實驗室、解剖實驗室、物證室、理化實驗室、工痕實驗室、手引顯現實驗室、足跡實驗室、指紋實驗室、人工畫像實驗室、畫像識別室、圖像處理室、語音分析室、DNA實驗室、光源實驗室
同類文章排行
- 實驗室規劃建設需要注意的地方
- 科瓦特2023年春節放假通知
- 成功簽約常熟立訊實驗室改造工程
- 喜訊,簽約完美生命科技研究院SPF動物實驗室
- 中山科瓦特國慶中秋放假通知
- 簽約中山板芙醫院PCR檢測室工程
- 喜訊 中標鴻基創能科技公司實驗室工程
- 成功簽約廣東威科質量檢測公司SPF級動物實驗室
- 2019年,科瓦特機電開工大吉
- 2019年春節放假通知
最新資訊文章
- 實驗室設計公司如何選擇
- 實驗室裝修設計方案需考慮哪些因素
- 實驗室裝修要考慮哪些因素
- 建設一個實驗室要花費多少錢,周期多長
- 實驗室裝修施工流程有哪些
- 實驗室空間如何布局
- 實驗室設計要注意那些要點
- 實驗室臺如何布局更好
- 實驗室裝修細節大揭秘
- 實驗室設計周期是多久?






